•  
  • Síguenos:

Compare Inmuebles

En venta apartamento en zona 1 Guatemala

Zona 1
Código: PVA-022-09-25-2 Habitaciones: Baños: Estacionamientos: Construcción: 74.50m2
Q1,121,593.79
CityMax Guatemala
CityMax Guatemala
5922-2148
2493-5555
Ver mis inmuebles
Guatemala

Resumen de Propiedad

  •  Código: PVA-022-09-25-2
  •  Habitaciones: 3
  •  Tipo: Apartamentos
  •  Baños: 1
  •  # Salas: 1
  •  Operación: Venta
  •  Construcción: 74.50m2
  •  Se aceptan mascotas
  • Q1,121,593.79 US$145,850.95

Detalles de Apartamento en Venta Zona 1

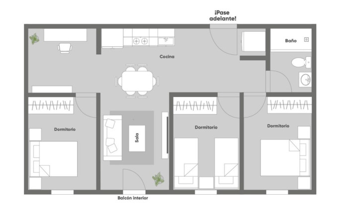
Proyecto apartamentos en Zona 1 Centro Histórico Guatemala Imagina despertar cada día en el corazón del Centro Histórico, frente a una calle peatonal rodeada de pequeños comercios y servicios que hacen tu vida más práctica y cercana. En este proyecto inmobiliario, no solo encuentras un apartamento, sino un estilo de vida: terrazas en los techos, áreas para celebrar, salones sociales, gimnasio y más, todo pensado para disfrutar y compartir. Apartamento en venta62 m² + 12.5 m² de parqueo3 habitaciones1 baño completo1 parqueo Incluye: Balcón francés Cocina con aéreo Closets sin puertas en todos los cuartos Lavamanos con mueble Piso cerámico gris Calentador electrónico de ducha tipo regadera Un espacio con esencia histórica y comodidades modernas, ideal para vivir o emprender en una de las zonas con más vida cultural de la ciudad.Reserva con Q10,000.00Enganche con 10% . - Código de Inmueble: PVA-022-09-25-2

  • País: Guatemala
  • Ciudad: Ciudad de Guatemala
  • Departamento: Guatemala
  • Sector: Zona 1
 

Características

  • # Balcones: 1
  • Accesos
  • Área de Juegos Infantiles
  • Área Social Exterior
  • Balcon
  • Cisterna
  • Escuelas cercanas
  • Estacionamiento visita: 15
  • Gimnasios cercanos
  • Habitación de servicio: No tiene
  • Lavanderia
  • Mascotas
  • Niveles construidos: 9
  • Número de elevadores: 2
  • Parques cercanos
  • Parrilla
  • Privada con vigilancia
  • Tipo de aire acondicionado: Otro
  • Tipo de terreno: Plano
  • Vigilancia

Información de contacto

CityMax Guatemala
CityMax Guatemala
5922-21482493-5555
Guatemala

Preguntar sobre esta propiedad

Inmuebles Similares

RentaVenta
V: US$903,000.00R: US$2,800.00
RentaVenta

APARTAMENTO EN VENTA Y RENTA EN TADEUS ZONA 14

Zona 14,Ciudad de Guatemala,Guatemala,Guatemala

 3 4 2 475.00m2

Apartamentos

V: US$903,000.00R: US$2,800.00

 3 4 2 475.00m2

Venta

US$394,500.00
Venta

Apartamentos en venta zona 10 Guatemala

Zona 10,Ciudad de Guatemala,Guatemala,Guatemala

 2 2 2 167.05m2

Apartamentos


US$394,500.00

 2 2 2 167.05m2

Renta

US$2,900.00
Renta

Apartamento en renta en Zona 14 Ciudad de Guatemala

Zona 14,Ciudad de Guatemala,Guatemala,Guatemala

 2 2 2 251.92m2

Apartamentos


US$2,900.00

 2 2 2 251.92m2